Hisar Villaları II • Sarılar İnşaat

Hisar Villaları II

Didim’in en değerli konumlarından Hisar Mahallesi’nde yer alan yeni konut projemiz Hisar Villaları II, modern yaşamın tüm ihtiyaçlarını üst düzey konforla buluşturuyor.

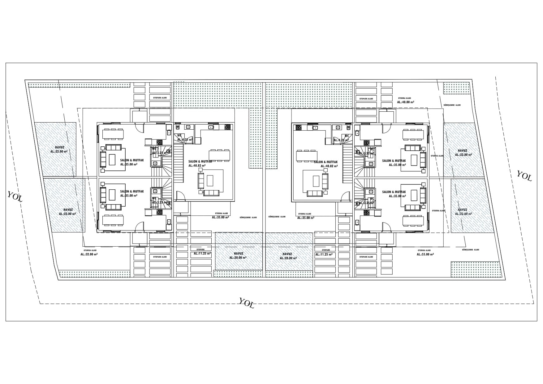
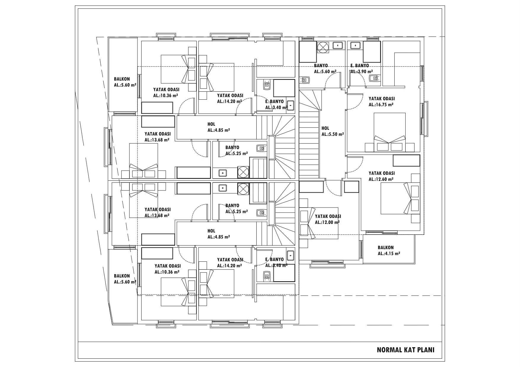
Bu özel tasarım projede toplam 6 adet villa yer almakta olup, her biri ayrıcalıklı bir yaşam sunacak şekilde planlanmıştır. Geniş kullanım alanları, modern mimari çizgileri ve fonksiyonel iç mekan tasarımı ile villalar; özel havuz, kapalı – güvenli otopark alanı, ferah bahçe düzenlemeleri ve yüksek kalite standartlarıyla dikkat çekmektedir.

Projemiz, hem yatırım değeri yüksek hem de aile yaşamına uygun yapı seçenekleriyle öne çıkmaktadır. Bölgenin değerli konum avantajı ve Didim’in prestijli yaşam alanlarına yakınlığı ile Hisar Premium Villaları; doğayla iç içe, huzurlu ve güvenli bir yaşam vaat etmektedir.


Özellikler:

  • Toplam 6 villa

  • Özel yüzme havuzu

  • Kapalı ve güvenli otopark

  • Modern ve fonksiyonel mimari

  • Prestijli konum: Hisar Mahallesi, 1745 Ada 6 Parsel


Prestijli yaşamın kapılarını şimdi aralayın!

Proje İletişim Formu

Projeler Haritası Tamamlanan Projeler Devam Eden Projeler Gelecek Projeler Hepsi
Canlı Destek
Canlı Destek
Aklınızdakileri sormaktan çekinmeyin!
İsmail Bey
İsmail Bey
+90 536 774 77 22